Gelijkvloers nieuwbouwappartement te IEPER

€ 344.437

OPENDEUR ZATERDAG 28/03 VAN 10U TOT 12U

 

Dit gelijkvloersappartement is gelegen in het nieuwbouwproject De Verdronken Weide.

De nieuwe residentie verbindt natuur en stad met elkaar.

Je geniet van een frontaal zicht op De Verdronken Weide en bevindt zich op 1200m van de Grote Markt, 300m van De Vestingen en 1300m van het station.

 

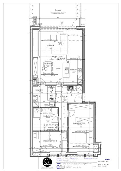
Het appartement heeft een bewoonbare oppervlakte van 114,80m² en wordt voorzien van inkom, 2 slaapkamers, ingerichte badkamer, apart toilet, berging, open keuken met lichtrijke leefruimte en toegang tot de ruime tuin (73m²) met terras (13.50m²).

Bovendien is er een gemeenschappelijke fietsenberging en vuilnislokaal voorzien.

Garage en/of autostaanplaats optioneel bij te kopen.

 

Aankoop aan 6% btw ipv 21% btw mogelijk!

 

De appartementen zitten in de laatste fase van afwerking, oplevering wordt voorzien april/mei 2026!

 

 

 

Stedenbouwkundige informatie
Voorkooprecht
:
Niet van toepassing
Bouwvergunning verkregen
:
Ja
Dagvaarding en herstelvordering
:
Geen rechterlijke herstelmaatregel of bestuurlijke maatregel opgelegd
Verkavelingsvergunning
:
In aanvraag
Bestemming
:
Woongebied met landelijk karakter
EPC
:
In aanvraag
Erfgoed
:
Nee
Comfort
Verwarming
:
Vloerverwarming
Lift
:
Ja
Keuken
:
Volledig ingebouwd
Beglazing
:
Hoogrendementsglas
Raamkozijn
:
alu
Lasten
Google kaart
De kaart vergroten
Uitzicht op straat
Algemeen
Prijs
:
€ 344.437
Aantal slaapkamers
:
2
Aantal badkamers
:
1
Adres
:
Rijselseweg 54/00.01, 8900 IEPER
Bewoonbare opp.
:
115 m²
Beschikbaarheid
:
Na werken
Bouwjaar
:
2025